当前位置: 首页 > 产品大全 > 室内平面图设计 电脑图文设计的关键要素与应用

室内平面图设计 电脑图文设计的关键要素与应用

室内平面图设计 电脑图文设计的关键要素与应用

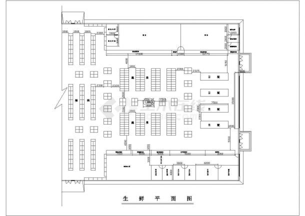
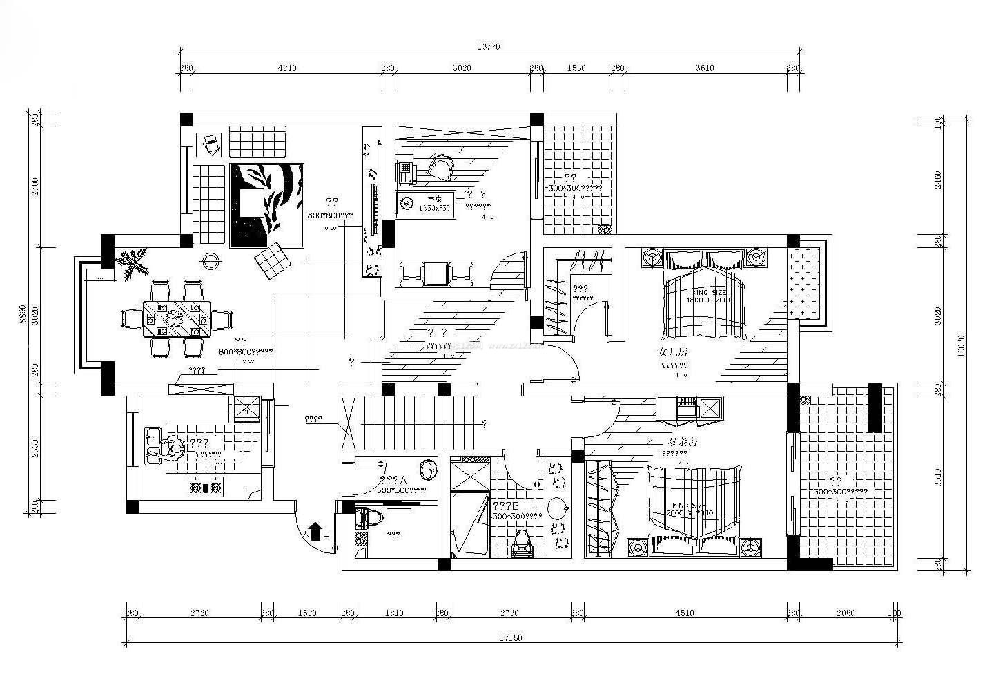
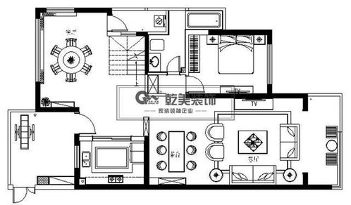
室内平面图设计是建筑与室内设计领域的重要环节,它通过图形化的方式展现空间布局、功能分区和动线安排。随着技术的发展,电脑图文设计已成为室内平面图设计的核心工具,它不仅提高了设计效率,还增强了设计的精确性和可视化效果。

电脑图文设计在室内平面图中的应用主要体现在以下几个方面:专业软件如AutoCAD、SketchUp和Revit等,能够快速绘制精确的二维和三维平面图,帮助设计师准确标注尺寸、材料和家具位置。这些工具支持图层管理,使得修改和协作变得简便。电脑图文设计促进了设计的可视化,通过渲染和虚拟现实技术,客户可以直观预览最终效果,减少误解和返工。电脑设计还便于数据整合,例如自动计算面积、生成物料清单,提高项目管理的效率。

要发挥电脑图文设计的优势,设计师需掌握基本的设计原则,如空间比例、功能性和美学平衡。同时,不断学习新软件和趋势,如BIM(建筑信息模型)和AI辅助设计,能提升竞争力。电脑图文设计是室内平面图设计的强大助力,结合创意与技术,能够打造出既实用又美观的居住与工作空间。

如若转载,请注明出处:http://www.chufu8.com/product/2.html

更新时间:2026-03-03 06:49:01

产品列表

PRODUCT